Eladó családi ház Budapest XXIII. ker, Soroksár, 99 900 000 Ft

Leírás

Új városrészt építünk! IX. ÜTEM!

# 3% OTTHON START PROGRAM # 3% CSOK PLUSZ HITEL # Piaci Hitel akár 6 % ALATT !! #

#HŐSZIVATTYÚ#PADLÓ-MENNYEZET#FŰTÉS-HŰTÉS#

CSOK PLUSZ minden ingatlanunkra igényelhető! Babaváró kölcsön intézésében segítünk!

Ingatlanainkat már 1.000.000.- Ft befizetésével lefoglalhatja!!!!

A Virágvölgy Lakópark modern megjelenésű, a mai kornak minden szempontból megfelelő fiatalos épületeivel, valamint új és igényes épített környezettel várja leendő tulajdonosait.

A több ütemben megvalósuló beruházás minden ingatlanához tartozik saját használatú kert, mely tökéletesen alkalmas baráti, családi összejöveteleken történő grillezésre, a gyermekeknek biztonságos játékra, vagy a család nyugodt pihenésére.

A lakáshoz tartozó saját kertrész: 245 m2.

Az új építésű ingatlan rendelkezik több autó számára alkalmas beállóval.

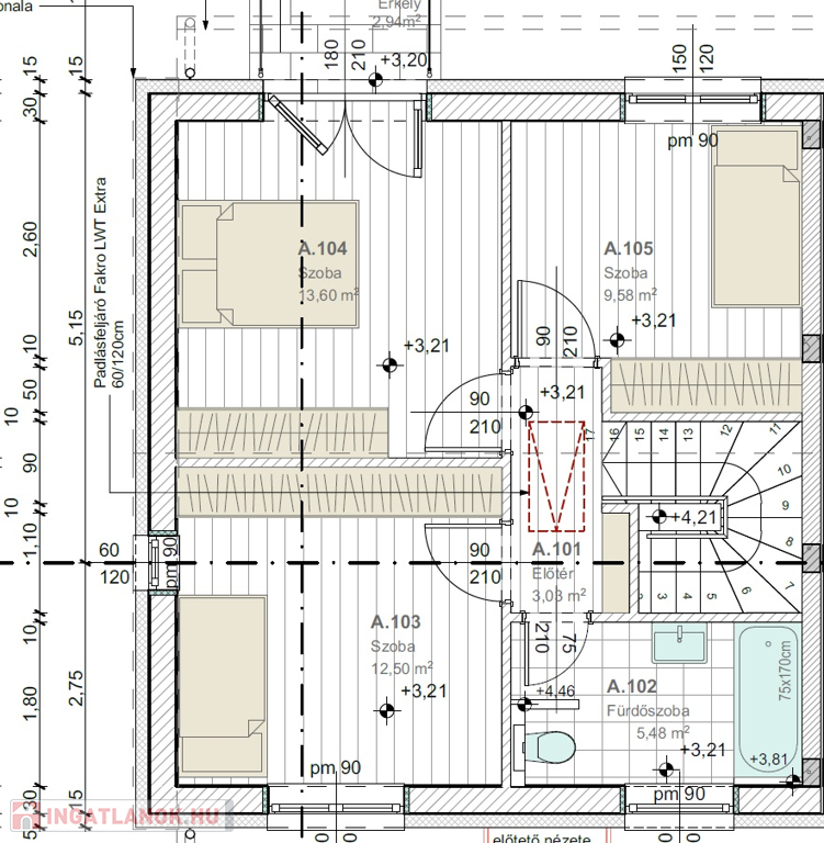
Az ingatlanok földszintjén az aktív időtöltést, családi együttlétet szolgáló helyiségek, az emeleten pedig a pihenést szolgáló hálók kaptak helyet, így ezek jól elkülönülnek egymástól, ezzel még inkább emelve az egyébként is magas komfortérzetet.

Választható szaniterek, burkolatok és beltéri ajtók.

Földszinten és az emeleten is padló és mennyezet fűtés és mennyezet hűtés került kiépítésre. Minden helyiség hőmérséklete külön szabályozható.

Átadás legkésőbb 2026. IV. negyedév. Az épület már szerkezetkész, így nagy valószínűséggel hamarabb meg fog történni az átadás.

Teljeskörű hitel ügyintézést vállaljuk!

Családi ház részletei

Ár: 99 900 000 Ft
Méret: 93 négyzetméter
Azonosító: 11550528
Cím: Középtemető utca 41.
Városrész: Soroksár
Telek: 245 négyzetméter
Ingatlan állapota: Épülő
Jelleg: családi ház
Építőanyag: Tégla
Fűtés jellege: Hőszivattyú
Fűtés módja: Hőszivattyú
Komfort fokozat: Dupla komfort
Kor: Új építésű
Szintek száma: 2 szint
Egész szobák: 4
Fél szobák: 1
Nappalik: 1

Egyéb jellemzők

  • Csatorna
  • Garázs
  • Melléképület
  • Padlás
  • Pince
  • Terasz

Térkép