Eladó lakás Budapest XXIII. ker, Soroksár, 99 900 000 Ft

Leírás

Új városrészt építünk! IX. ÜTEM!

#HŐSZIVATTYÚ#PADLÓ-MENNYEZET#FŰTÉS-HŰTÉS#

CSOK PLUSZ minden ingatlanunkra igényelhető! Babaváró kölcsön intézésében segítünk!

Ingatlanainkat már 1.000.000.- Ft befizetésével lefoglalhatja!!!!

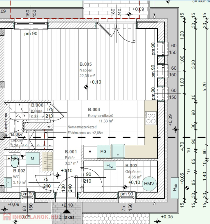
A Virágvölgy Lakópark modern megjelenésű, a mai kornak minden szempontból megfelelő fiatalos épületeivel, valamint új és igényes épített környezettel várja leendő tulajdonosait.

A több ütemben megvalósuló beruházás minden ingatlanához tartozik saját használatú kert, mely tökéletesen alkalmas baráti, családi összejöveteleken történő grillezésre, a gyermekeknek biztonságos játékra, vagy a család nyugodt pihenésére.

A lakáshoz tartozó saját kertrész: 173 m2.

Az új építésű ingatlan rendelkezik több autó számára alkalmas beállóval.

Az ingatlanok földszintjén az aktív időtöltést, családi együttlétet szolgáló helyiségek, az emeleten pedig a pihenést szolgáló hálók kaptak helyet, így ezek jól elkülönülnek egymástól, ezzel még inkább emelve az egyébként is magas komfortérzetet.

Választható szaniterek, burkolatok és beltéri ajtók.

Földszinten és az emeleten is padló és mennyezet fűtés és mennyezet hűtés került kiépítésre. Minden helyiség hőmérséklete külön szabályozható.

Átadás legkésőbb 2026. II. negyedév.

Teljeskörű hitel ügyintézést vállaljuk!

Lakás részletei

Ár: 99 900 000 Ft
Méret: 93 négyzetméter
Azonosító: 11328319
Cím: Középtemető utca
Városrész: Soroksár
Erkély mérete: 3.00 négyzetméter
Emelet: Földszint
Építőanyag: Tégla
Fűtés jellege: Hőszivattyú
Ingatlan állapota: Kérdezzen rá a hirdetőtől »
Komfort fokozat: Dupla komfort
Építési év: Új építésű
Elhelyezkedés: Lakópark
Kilátás: kertre néző
Kert: Saját kert
Egész szobák: 4

Egyéb jellemzők

  • Erkély
  • Garázs
  • Klíma
  • Lift
  • Pince
  • Kertkapcsolat
  • Tároló
  • Kocsibeálló

Térkép